Steuerung Heizung ganz einfach an aus

Hallo @ all,

Das ist nur ein Gedanken PoC auf der Suche nach Meinungen:

ich würde gerne meine Heizung (mehr) automatisieren. Es spielt sicherlich der Typ keine große Rolle aber für Research Zwecke schreibe ich das mal mit dazu. Es ist eine Viessmann Sole WP Vitocal 222-G BWT 221.B06 mit (träger) Fußbodenheizung.

Diese kann ich auch per ViCare App Anbindung im HA steuern. Leider hat die Heizung eine (aus der Sicht meiner Frau) große Hysterese die ungefähr 2 Grad beträgt bis diese wieder anspricht und dann noch zäher den Fußboden erwärmt. Das heißt real kühlt das Zimmer schon merklich aus. Nun habe ich die letzten 3 Winter versucht das mit Neigung und Niveau zu regeln bekomme das aber nur gut und nicht ideal(st) hin. Unser Wohnzimmer = Lebensraum - ist direkt nach Süd ausgerichtet und je nach Sonnen Einstrahlung schon ohne Heizung bis in den Spätherbst zu warm.

Meine Heizung hat, soweit ich das herausfinden konnte, nur einen FixSpeed Kompressor. Kann also nur AN / AUS.

Könnte ich dann nicht auf die ganze Logik in der Heizung verzichten und das per HA steuern, da ich hier die Wohnraumtemperatur nehme die ich auch real an den Orten messe wo wir es warm haben wollen und die Heizungs-Logik ganz weglassen? Also wenn Wohnzimmer Temperatur x dann Heizung Boost Programm bis Temp Y dann aus.

Gerne auch kritische Meinungen zu meiner Idee.

LG

Ich kenn deine Erfahrung mit WP und FBH nicht, aber das sind zu wenig Infos:

ERR vorhanden siehe: der Selbstregeleffekt kann eine ERR überflüssig machen
Pufferspeicher vorhanden?
Hydraulischer und thermischer Abgleich gemacht?
Auskühlen und Abkühlen der Räume ist oft nicht effizient
Raumtemperatur Automationen funktionieren schlecht darum regelt man nach der Außentemperatur und bei An/Aus müsstest du ja Forecasts machen.

Meine Erfahrung, wenn einmal richtig eingestellt muss man bei einer WP nichts mehr steuern und regeln.
Einzige Ausnahme es ist mal eine Woche im Feb./März. bis zu 15 Grad warm dann musst mal manuell die WP austellen. Aber das kam die letzten 5 Jahre vielleicht 1 mal vor :smiley:

1 „Gefällt mir“

ERR vorhanden siehe: der Selbstregeleffekt kann eine ERR überflüssig machen

  • nein keine ERR (bereits abgeklemmt)

Pufferspeicher vorhanden?

  • nein

Hydraulischer und thermischer Abgleich gemacht?

  • ja wäre jetzt den 4 Winter in folge

Auskühlen und Abkühlen der Räume ist oft nicht effizient

  • ist mir bekannt. mir wäre es auch lieb die WP würde mit 30 Grad durchgehend laufen. Macht sie aber leider nicht sondern fällt immer ungefähr zwei Grad unter den Sollwert + 3 Stunden bis die FBH dann warm ist. Schwingt dann ungefähr zwei Grad über den Wunschwert bis sie abschaltet. Dann das selbe von vorne.

Raumtemperatur Automationen funktionieren schlecht darum regelt man nach der Außentemperatur und bei An/Aus müsstest du ja Forecasts machen.

  • ja das klingt auch aufwändig.

Ich bin dazu schon im Haustechnikdialog Forum unterwegs nach Lösungssuche. Steuerung bei HA wäre halt “einfacher” umzusetzen als bei der Heizung an zig Stellschrauben zu drehen :wink:

Ah top schick mal Link dazu. Dann sieht man was die Experten dazu geschrieben haben.
Musst ja nicht alles wiederholen. Ich glaube regeln und steuern sollte dein letzter Weg sein. Du musst auch bedenken automatisieren kann schädlich für eine WP sein. Die meisten haben günstige EPROM verbaut und dann hat die Steuerung nur 10.000 Schreibzyklen oder sowas für bestimmte Werte.

Ich weiß nicht was du meinst mit 30 Grad durchlaufen? Raumtemperatur? Vorlauf? Rücklauf?

Wie hast du den thermischen Abgleich gemacht?

1 „Gefällt mir“

hier im Beitrag “Vorlauf zu hoch” geht es darum das ich den Vorlauf zu hoch finde. Ich wollte da nun technisch gegen steuern. Das mit HA hier angesprochene, ist ein Teilthema von meinem Problem.

bei mir 30° durchlaufen meine ich den Vorlauf. Das lässt sich aber schwer regulieren.

Ich schau heute Abend mal rein. Vielleicht fällt mir was auf.
Aber durchlaufen mit 30 Grad macht ja keinen Sinn bei einer On/Off LWWP sie wird immer versuchen den Zielzustand in der Heizkurve zu erreichen. Normalerweise haben die Hersteller zu der Heizkurve auch ein Diagramm dabei.

Aber wenn du Viessmann hast, hast du doch bestimmt einen (hoffentlich) seriellen Puffer dabei. Viesmann verbaut die doch gar nicht ohne

1 „Gefällt mir“

ist eine Sole WP und von der ökonimie wäre 30 Grad durchlaufen schon sinnvoll finde ich. Puffer ist keiner. Ich hab den Flur als Puffer der nicht abgedreht werden kann.

Ja auch bei Sole solange du keine modulierende hast wird das gleich gehen.

Kannst du mal beschreiben wie du den hydraulischen abgleich gemacht hast?

Wieviel qm beheizt du? Wie ist dein aktueller Stromverbrauch? Was sind deine Raum Ziel Temperaturen? Welche Heizleistung hat dein Gerät? Hast du Witterungsgeführt eingestellt oder nicht? Wie ist deine aktuelle Spreizung?

1 „Gefällt mir“

ich bin im Heizungsbereich gar nicht bewandert möchte nur (noch) mehr optimieren. Meine Gedanken Vorlauf + 5° = Zimmertemperatur Wohnzimmer - dafür läuft die WP maximal lange und durchgehend ohne zu Takten.

Laut Startzähler und HA Grafen läuft sie auch durch - nur mir eben mit teilweise über 37° Vorlauf. Das ist der Teil den ich nur nicht verstehe - kann ja trotzdem richtig sein.

  • Kannst du mal beschreiben wie du den hydraulischen Abgleich gemacht hast?
    Hydraulischer Abgleich alle Regler voll auf, Heizung im Hauptraum ideal einstellen und dann den Rest soweit zudrehen bis dort die Wunschwerte erreicht werden.

  • Wieviel qm beheizt du?
    Wir beheizen “nur” 136qm Parterre.

  • Wie ist dein aktueller Stromverbrauch?
    Wie ist die Frage gemeint? KW 46 - 62Kwh auf Heizen und WW

  • Was sind deine Raum Ziel Temperaturen?
    Wohnzimmer und alle Wohnräume (Arbeitszimmer, Kinder) 22, Schlafzimmer 18, Werkstatt 20, Bad 23

  • Welche Heizleistung hat dein Gerät?
    Laut Specs 5,8 kW Sole/Wasser Wärmepumpen-Kompaktgerät

  • Hast du Witterungsgeführt eingestellt oder nicht?
    Bahnhof? :wink:

  • Wie ist deine aktuelle Spreizung?
    Auch keine Ahnung

Gut die Grundlagen und funktionieren solltest schon verstehen, sonst wird es auch schwer zu erklären z.B. warum es Heizkurve und nicht Heizlinie heißt ;).

Ich kann dir ja mal meine Vermutungen darlegen:

  1. Witterungsgeführt vs Raumtemperaturgeführt

Witterungsgeführt: “Bei witterungsgeführtem Betrieb passt die Wärmepumpe ihre Vorlauftemperatur anhand der Außentemperatur an.”

Raumtemperaturgeführt : “Bei raumtemperaturgeführtem Betrieb misst ein Raumthermostat die Temperatur in einem bestimmten Raum (oft im Wohnzimmer) und steuert die Wärmepumpe entsprechend.”

Bisher kenne ich nur Witterungsgeführte Anlage und habe diese eingestellt.
Du hast aber eine raumtemperaturgeführt und dann auch noch in einem anderen Raum.
Das verstehe ich schon mal nicht warum du nicht witterungsgeführt machst, dafür ist die Anlage sogar ausgelegt.

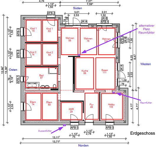
“Ja der befindet sich in der Werkstatt weil das der kälteste Raum ist. Die Werkstatt ist aber Parterre einfach “ein Raum” von unserem Bungalow (135qm) an der Nordseite.”

Darum passt die Heizkurve natürlich nicht, weil auf den Dialogen sind auch die Außentemperatur drauf, wenn du aber keinen außen Fühler hast passen die Werte auch nicht, wenn du nur die Werte aus deiner Werkstatt nimmst. Ich vermute mal 0 Grad wirst du dort nie haben.

  1. Größe der WP
    Wenn ich die Anleitung richtig verstehe hat Sie mehre Leistungsstufen und die niedrigste ist 5,8.
    Das solltest mal prüfen, ob das auch bei dir so eingestellt ist, weil selbst 5,8 ist für ein KFW 40 Haus mit 136qm zu groß. Darum taktet sie auch relativ häufig wenn ich deine Verdichterstart zur Laufzeit sehe sind das durchschnittlich so 1,5h pro Takt.

  2. Hydraulischer Abgleich
    Ich würde den nochmal machen mit einem Plan dahinter. Einfach nur runter drehen bis die Temperaturen passen ist kein Abgleich.
    Such dir ein Referenzraum der eine lange Heizkreislänge hat (meistens Wohnzimmer) und stell den Rest zu dem Raum ein. Der Raum sollte eigentlich auch vollen Durchfluss erhalten. Du hast relativ viel runter geregelt. Auch der Satz mit deinem Flur als “Puffer” passt so nicht ganz in die Hydraulik. Auch sollte es bewölkt sein und keine Sonne draußen scheinen und nicht mehr als 5 Grad haben. Dann bekommst ein gutes Ergebnis hin. Die Formel für die erste Einstellung kann ich dir schicken. Hast du ALLE Heizkreislängen?

Fragen/Anmerkung:

  1. Ich meint was du an Jahresverbrauch an Strom hast für WW und Heizung? Welche JAZ?
  2. Spreizung solltest du mal tracken und herausfinden, weil ich vermute du musst noch deine Umwälzpumpe usw. einstellen. Laufen bestimmt auf volle pulle…
  3. Hysterese ist 2K? Siehst du deine VLT und RLT Soll und Ist?
  4. Prüfen könntest noch das 3 Wege Ventil. Die gehen gern mal kaputt.
  5. Luft im Heizkreis ist auch nicht gut :wink:
1 „Gefällt mir“

danke für die Heizungs Antworten auch wenn ich mich im HA Forum dann doch nicht so wohl dabei fühle :wink:

Verbrauch war Oktober 23 bis Oktober 24 - 2210 kwh
JAZ gesamt ist 4,5, Wasser 3,5 und Heizen 4,9,

Den Rest versuche ich mal über die Woche zu erarbeiten. Spreizung und Pumpendrehzahl ist alles vom Heizungsmann vor 5 Jahren. Ich hab da noch nicht drin rumgedreht. Das wäre ja Codierebene 1 oder Codierebene 2. Da brauch ich ne Anleitung zu den Registern.

Letzte Wartung war vor einem Jahr. Da war aber nichts.

Der eine Start am Tag kommt vom WW Bereitung der Rest ist Heizung. Ich dachte mit meinem 1,5 bin ich schon im super Bereich wenn ich mir so durchlese das es tatsächlich Leute gibt wo die Heizung am Tag über 30 mal startet …

Ich hatte das mit der Leistung der WP (ich habs selbst nicht ausgewählt) so verstanden das sie max 5,8 KW kann. Sie ist laut Viessmann die kleinste Vitocal 222-G

Ich habe einen Innenfühler in der Werkstatt und auch einen Aussenfühler. Wie die aber zusammen interagieren weiss ich (noch) nicht.

Gut Verbrauch passt ja. Takte und Taktlängen können besser sein. VLT 37 Grad ist auch kein Beinbruch.
Ist nur dein Wohnzimmer zu warm?

Ja ohne die Hydraulik zu kennen ob außen oder innen gefühlt, ist es natürlich schwer.

Die Pumpen können auch extern einzustellen sein, kann sein die muss man nicht über Codierebene einstellen.
Spreizung kann man auch nicht einstellen die ergibt sich ja durch die Einstellungen.

1 „Gefällt mir“

Olá, leider habe ich weder einen Leitungs- noch einen Hydraulikplan oder ähnliches bekommen. Das Wohnzimmer kühlt immer recht schnell aus (wenn die Sonne weg ist von der Fensterfront - natürlich nur Oktober - März ) und überheizt sich dann, wenn die FBH läuft bis die Heizung abschaltet. Daher war das mein anfängliches Ansinnen, es eben stumpf nach dem Wohnzimmer an / auszumachen. Pumpenleistung FBH ist nur über Codierebene 2 zu finden steht momentan bei 75%. Die VL steht bei max 40. Da hatte ich auch dran gedacht die einfach bei 35 zu begrenzen. Wahrscheinlich muss ich nochmal den Wohnraumfühler umbauen und die Abgleich nochmal von vorne beginnen.

Schwer da jetzt Tipps zu geben. Ist halt ein wenig try and error, ob es hilft.

ICH würde folgendes machen.

a) Nochmal den Heizungsbauer fragen, ob man komplett nur den Fühler draußen verwenden kann für die Steuerung (eigentlich hat man sogar 2 außenfühler)
b) Mal schauen wie die Spreizung ist sollte so >5K sein. Sonst Heizkreis pumpe runter damit das Wasser langsamer fliesst. Spreizung = VLT - RLT mal über einen Takt beobachten raus loggen wenn das geht.
c) Abgleich nochmal neu machen und dabei das Wohnzimmer als Referenzraum nehmen und dort vollen Durchfluss machen und nicht anpassen.
Excelliste anlegen als Tagebuch

Beliebte Formel ist
Alle Kreise über 90m bekommen vollen Durchfluss.
Alle anderen Kreise werden dazu proportional eingestellt.
Beispiel
100m = 5L
50m = 1,25L
30m = 0,75L

Schlafzimmer kannst lassen, wenn es jetzt passt.
Dann jeden Tag 2-3 Kreise wo die Temperatur nicht passt ändern (24h warten)
Am Besten in 0,25 - 0,5L Schritten. Mehr Durchfluss wirds wärmer, weniger Durchfluss kälter.
Eintragen in die Excel jede Änderung mit Tag.

Am Besten ist immer zu messen wenn wenig Sonne da ist und es draußen so um die 5 Grad hat.

Sind Thermometer in jedem Zimmer vorhanden?

Ich weiß leider nicht was bei dir Pumpenleistung ist. Auf deinen Bilder sieht man zumindest das du eine Pumpe (die grüne) außen hast. Ich weiß aber nicht für was die ist.

“Wahrscheinlich muss ich nochmal den Wohnraumfühler umbauen und die Abgleich nochmal von vorne beginnen.”

Was meinst du damit?

EDIT: und wichtig schreib deine jetzigen Einstellungen auf. Das du im worst case alles zurücksetzen kannst…

1 „Gefällt mir“

Ich häng mal hier noch zwei Bilder an. Das eine ist vom Wohnraumfühler der in Hobbyraum hängt (den müsste ich ins Wohnzimmer umbauen). Daneben ist auch mein Funkthermostat zu sehen und schon die Abweichung der beiden macht mich kirre…

Auf dem anderen Bild sieht man etwas, was ich im Fußbodenverteiler in einer Ecke reingesteckt gefunden habe. Es ist offensichtlich nicht meine Handschrift und gehört gegebenenfalls zum Heizungsbauer. Entweder sind es die Faktoren, von denen du gesprochen hast oder die Durchflussmengen oder irgendetwas ganz anderes :wink:

Da jeder Raum bei mir zwei Heizschleifen hat. Bis auf den HWR und das Wohnzimmer sogar drei kann ich schwer rausfinden, wo die längste Leitung ist.

Edit: ich habe sogar eine 19-seitige Heizlastberechnung gefunden. Aber ob dir mir was nützt?

Es hat eine Menge Research und Bilder sichten benötigt.

Ich habe nun die Leitungslängen und die Heizkreise von den Baubildern rausgesucht.
Bei den 3 Wohnraumkreisen sowie bei den Kreisen in den Zimmern kann ich die Position nicht genau bestimmen. Dort habe ich immer die längere Leitungslänge als “hinten” gesehen.

Die Leitungslängen(?) stehen beim mir auf dem Heizkreisverteiler - zumindest denke ich das es die Zahlen sind.

Hier noch die Frage: macht es überhaupt Sinn den Abgleich nochmal neu zu machen oder sollte ich den Wohnraumfühler erst einmal verlegen bevor ich alle Kreise auf und dann wieder zu drehe. Möchte das ungern noch x mal machen mit dem Abgleich. Sollte ich dazu auch die Neigung und Niveau in der Heizung wieder zurück stellen?

Es sind ja mehrere Zahnräder die ineinander greifen und sich beeinflussen, aber alles auf einmal ändern ist halt immer schwierig.
Meine Vermutung ist, wenn du mehr Durchfluss und eine niedrigere Heizkurve hinbekommst du längere Takte hinbekommst und auch das starke Aufheizen/Abkühlen besser in Griff bekommst.

Vorgehen:
a) Einstellung nach Formel oben. Wohnzimmer ist dein Referenzraum zu dem du alles einstellst.
Heißt wenn Wohnzimmer zu Beginn nach der Änderung 24 Grad hat und Kinderzimmer 25 Grad, du willst aber das Kinderzimmer später auch soviel hat musst es runter drehen. Wenn es nur 23 Grad hat musst du es hochdrehen. So stellst du alle Räume ein, aber wenn man mal die Werte nach der ersten Einstellung hast, kann man weiter machen.
b) Wenn dein Wohnzimmer (wovon ich ausgehe) natürlich jetzt zu warm ist, musst du die Heizkurve an der WP neu einstellen. Die anderen Räume passen sich dann dementsprechend an, weil du davor den Abgleich gemacht hast. Es sollten sich nur noch minimale Änderungen ergeben theoretisch gar keine
c) (Optional) Feintuning in den Durchflüssen, falls du z.B. in Kind 2 merkst, dass der kleine und große Kreis merklich Temperaturunterschiede am FBH ergeben.
d) Heizkurve einstellen dauert normal 1-2 Winter, weil du auch einmal die Übergangszeit (Herbst Frühling) mit machen musst für die richtige Neigung.
e) (Optional) Feintuning deiner Spreizung und Taktlängen z.B. durch Einstellung der Umwälzpumpe etc.

Zusammenfassung:
a) Abgleich kannst eigentlich gleich machen
b) Heizkurve ändert sich natürlich jedes mal wenn du die Durchflüsse und/oder den Fühler woanders hinsetzt.
Ich kann dir nicht sagen, wie man mit Raumfühler arbeitet, ob es besser im Hobbyraum oder Wohnzimmer ist. Ich würde nur nach dem Außenfühler gegen ohne Raumfühler, Außenfühler an Ost und West.
Ich kann zur Steuerung erst was sagen, wenn ich wüsste wie Raumfühler und Außenfühler zusammenhängen.

Wie du siehst man kann viel machen, aber erst mal würde ich einfach die Basics machen.
Abgleich + Heizkurve und schauen was passiert.

Wenn es dann nicht passt kannst den Raumfühler umsetzen bzw. schauen was die Experten sagen weil ich nicht weiß was besser ist ob Wohnzimmer oder Hobbyraum. Vielleicht findest du ja auch noch raus was der Außenfühler macht, aber ja im Notfall musst eben die Heizkurve neu einstellen.

1 „Gefällt mir“

danke. ich hab zumindest Wohntimmer, Essen, Küche und Flur (ist ja eigentlich alles ein Raum) voll aufgedreht. Bis auf Flur und Essen ging da bei allen nur noch eine viertel Umdrehung. war also schon alles offen. Da habe ich ca. (laut Röhrchen) 2Liter Durchfluss überall. Weiterhin habe ich die Raumtemperatur von Wunsch 22 auf 21 runter genommen und schaue mir das an. An den andern Räumen habe ich noch nicht gedreht.

Noch eine dumme Nachfrage
Die Heizkurve ist nicht das was ich unter Neigung und Niveau finde?

:crayon:by HarryP: Zusammenführung Doppelpost (bitte “bearbeiten” Funktion nutzen)

Ich bin verwirrt laut deinen Bilder solltest du 5L durchfluss haben max und das ist mehr als das doppelte im Wohnzimmer was deine Bilder aussagen. Mach mal ein Bild von deinen 3 Wohnzimmer Röhrchen

Doch genau die 2 Parameter ergeben die Heizkurve

:crayon:by HarryP: Zusammenführung Doppelpost (bitte “bearbeiten” Funktion nutzen)

das ist genau jetzt live. voll aufgedreht 3x Wohnzimmer 1x küche

auf keinem der ganzen (aller) Röhrchen erreiche ich irgendwas über 2 Liter. Ich kann es nur weiter zudrehen dann steigt der “Schwimmer”